Introduction
Architectural drawings are visual representations of a building or structure that show the exact location and dimensions of all components. They are used by architects, engineers, contractors, and other professionals to communicate ideas and information about a project. The purpose of reading architectural drawings is to gain an understanding of the design intent and to ensure accuracy in construction.

Key Components of an Architectural Drawing
Architectural drawings typically consist of four main elements: Floor Plans, Elevations, Sections, and Details. Each element serves a different purpose and provides a different level of detail.
Floor Plans
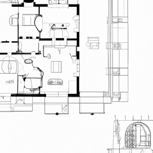
Floor plans are two-dimensional drawings that show the layout of a space from above. They provide detailed information about the location of walls, doors, windows, stairs, and other components. Floor plans also indicate the size and shape of each room.
Elevations
Elevations are two-dimensional drawings that show the height and width of a structure from the side. They provide information about the exterior features of a building such as windows, doors, balconies, and rooflines.
Sections
Sections are three-dimensional drawings that show how a building is constructed. They provide detailed information about the interior features of a building such as walls, floors, ceilings, and columns.
Details
Details are two-dimensional drawings that provide information about specific components of a building such as windows, doors, and stairs. They provide information about the size, shape, and location of these components.
Step-by-Step Guide on How to Read a Floor Plan
Reading a floor plan requires a basic understanding of the various components and symbols used in architectural drawings. Here is a step-by-step guide on how to read a floor plan:
1. Identifying walls, doors, windows, and other components
The first step in reading a floor plan is to identify the various components. Walls are typically represented by solid lines, while doors and windows are represented by dashed lines. Furniture and other objects are usually represented by symbols or abbreviations.
2. Understanding the measurements and scale
Once the components have been identified, it is important to understand the measurements and scale of the drawing. Measurements are typically represented in feet and inches, and the scale is usually indicated in the bottom right corner of the drawing.
3. Interpreting symbols and abbreviations
Many architectural drawings contain symbols and abbreviations to represent various components. It is important to understand these symbols and abbreviations in order to accurately interpret the drawing.

The Importance of Understanding Building Structures
In addition to being able to read and interpret architectural drawings, it is also important to understand the basics of building structures. This includes knowing building codes and regulations, understanding load bearing walls, and analyzing building materials.
Knowing building codes and regulations
It is important to understand local building codes and regulations in order to ensure the safety and integrity of a structure. All buildings must comply with applicable codes and regulations, and any deviations must be approved by the local building authority.
Understanding load bearing walls
Load bearing walls are walls that support the weight of the structure above them. It is important to understand which walls are load bearing in order to safely and correctly construct a building.
Analyzing building materials
When constructing a building, it is important to understand the different types of building materials and their properties. Different materials can have different strengths and weaknesses, and it is important to choose the right material for the job.

Tips on Identifying Different Types of Lines and Symbols
In order to accurately read and interpret architectural drawings, it is important to understand the different types of lines and symbols used. Here are some tips on identifying different types of lines and symbols:
Wall lines
Wall lines are typically represented by solid lines. They indicate the location and size of walls in a floor plan.
Dimension lines
Dimension lines are typically represented by dashed lines with arrows at either end. They indicate the length and width of a component in a floor plan.
Hatching lines
Hatching lines are typically represented by cross-hatched lines. They indicate the type of material used in a particular area of a floor plan.
Labeling conventions
Many architectural drawings contain labeling conventions to indicate the size, shape, and location of components. It is important to understand these conventions in order to accurately interpret a drawing.
Common Mistakes Made by Beginners
When learning how to read architectural drawings, it is important to avoid making common mistakes. These mistakes include misinterpreting symbols, not understanding the scale, and neglecting details.
Misinterpreting symbols
One of the most common mistakes made by beginners is misinterpreting symbols. It is important to understand the meaning of each symbol in order to accurately interpret a drawing.
Not understanding the scale
Another common mistake is not understanding the scale. It is important to understand the scale of a drawing in order to accurately measure distances and sizes.
Neglecting details
Beginners often overlook details such as furniture, fixtures, and appliances. It is important to pay attention to these details in order to accurately interpret a drawing.
Examples of Actual Architectural Drawings
To better understand how to read architectural drawings, it is helpful to look at examples of actual drawings. Here are some examples of floor plans, elevations, and sections:
Floor plans

Elevations

Sections

Conclusion
Reading architectural drawings is an essential skill for anyone involved in the design and construction of a building or structure. It is important to understand the components, symbols, and conventions used in architectural drawings in order to accurately interpret them. With practice and patience, anyone can learn how to read architectural drawings.
(Note: Is this article not meeting your expectations? Do you have knowledge or insights to share? Unlock new opportunities and expand your reach by joining our authors team. Click Registration to join us and share your expertise with our readers.)